Recentissimo capannone industriale con vetrine e uffici

Cantu' (Como)

Rif: IMMO-123676335
Condividi Linkedin Whatsapp Stampa
Tratt. riservata
Vendita
Capannone industriale
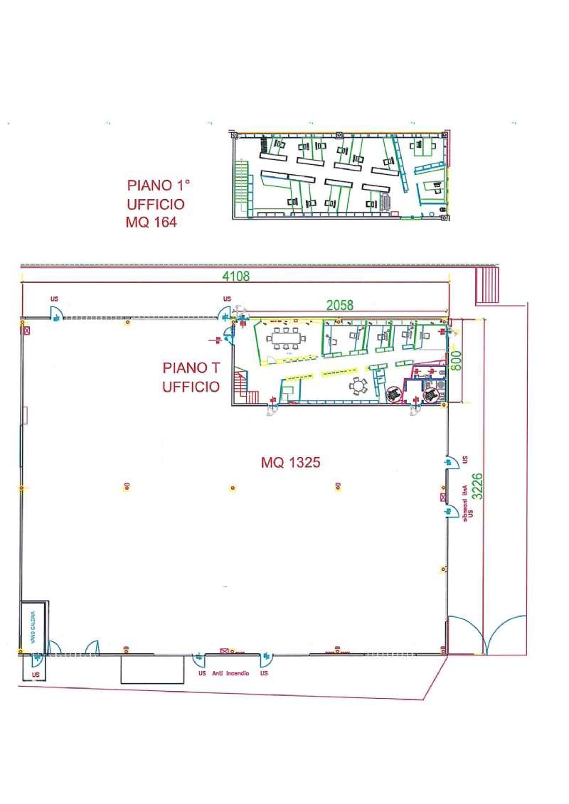
1500 Mq
Classe energetica Non indicata
Proprio fronte strada con ampio libero parcheggio esterno, comodo per movimentazioni pesanti, con predisposizione carroponte, vero capannone industriale altezza 7 mt dove possibile insediare anche attività insalubri. Libero sui tre lati, luminosissimo Già con anello anti incendio a norma vigili del fuoco Già con uffici e servizi, riscaldamento a pavimento. Possibilità sia in locazione sia in vendita Visite previo appuntamento Telefonare 335.8396004 G. Rossi

Dettaglio immobile

Contratto Vendita
Rif IMMO-123676335
Prezzo Tratt. riservata
Provincia Como
Comune Cantu'
Indirizzo Via Milano
Superficie 1500 mq
Classe energetica Non indicata
Riscaldamento autonomo
Condizioni nuova costruzione
Ascensore no

Planimetrie

Richiedi maggiori informazioni

Autorizzazione al trattamento dei dati personali+
Dichiaro di aver letto l'informativa sulla privacy ed accetto le condizioni d'utilizzo del servizio.
Riempi il campo con il codice riportato nell'immagine*
Codice Captcha
Chiamaci Contattaci