NUOVO CON TERRAZZO

Alserio (Como)

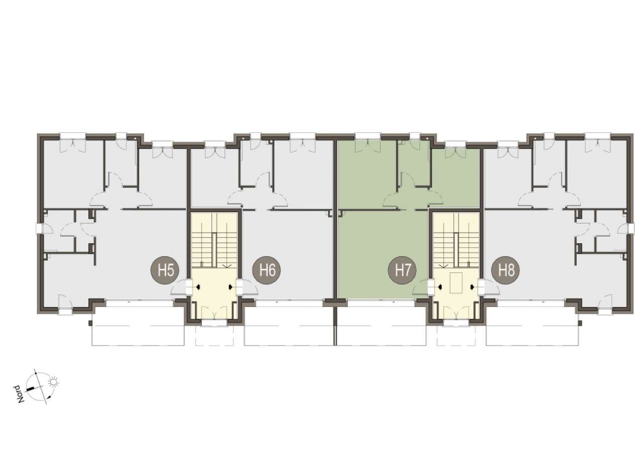
Rif: h7
Condividi Linkedin Whatsapp Stampa
€ 217.000
Appartamento
84 Mq
3 Vani
Classe energetica Non indicata
2 Camere
1 bagno
Rif: h7 - Trilocale moderno al primo e ultimo piano con TERRAZZO – Classe A3 Se cerchi una casa luminosa, efficiente e con uno spazio esterno tutto da vivere, questo trilocale è la soluzione ideale. Situato all'ultimo piano, l'appartamento offre una zona giorno open-space composta da cucina e soggiorno, caratterizzata da grandi aperture che garantiscono luce naturale durante tutto l'arco della giornata. La zona notte comprende due camere da letto ben distribuite e 1 bagno, progettati per un comfort quotidiano ottimale. L'immobile vanta una classe energetica A3 (valore di progetto indicativo), garanzia di elevata efficienza, consumi ridotti e comfort abitativo in ogni stagione. Punti di forza: Luminosità eccellente Elevata efficienza energetica Terrazzo Spazi interni moderni e ben distribuiti Una proposta ideale per chi desidera qualità, tranquillità e un contatto diretto con la natura senza rinunciare alle comodità moderne.
CONSEGNA FEBBRAIO 2027


Consulenza ed assistenza tecnico legale sino alla stipula del Rogito Notarile. Valutazioni GRATUITE SENZA IMPEGNO Servizio FOTOGRAFICO Inserzioni pubblicitarie sui maggiori portali di settore e riviste Associati F.I.M.A.A. Como. Note: Le informazioni presenti nelle schede immobili non costituiscono alcuna forma di contratto, tutte le informazioni contenute negli annunci sono da ritenersi del tutto indicative e non potranno essere utilizzate come parte integrante in un eventuale contratto di vendita o locazione della proprietà e non vincolano in alcun modo la società Gruppo Servizi Immobiliari. NOTA: Si avvertono i Signori clienti che gli indirizzi inseriti all'interno dell'annuncio sono indicativi e non rispecchiano la realtà. Questa, vuole essere un ausilio nell'indicazione della zona pur rispettando la Privacy dei venditori. Ulteriori chiarimenti possono essere forniti presso la nostra sede o telefonicamente

Dettaglio immobile

Contratto Vendita
Rif h7
Prezzo € 217.000
Provincia Como
Comune Alserio
Indirizzo Via Cascina Galbera Snc
Superficie 84 mq
Vani 3
Camere 2
Bagni 1
Classe energetica Non indicata
Piano 1
Riscaldamento centralizzato
Condizioni nuova costruzione
Ascensore no
Cucina a vista
Terrazza si

Planimetrie

Richiedi maggiori informazioni

Autorizzazione al trattamento dei dati personali+
Dichiaro di aver letto l'informativa sulla privacy ed accetto le condizioni d'utilizzo del servizio.
Riempi il campo con il codice riportato nell'immagine*
Codice Captcha
Chiamaci Contattaci