libero termoautonomo

Cantu' (Como)

Rif: IMMO-126236421
Condividi Linkedin Whatsapp Stampa
€ 115.000
Appartamento
100 Mq
3 Vani
Classe energetica G
2 Camere
1 bagno
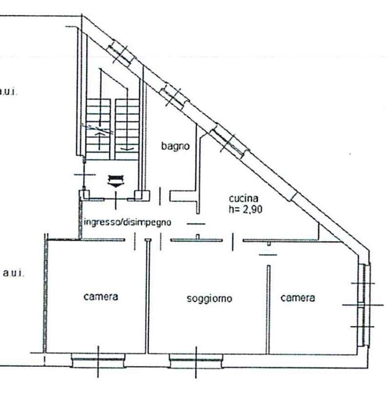
Proprio in centro a Cantù via puecher in piccola palazzina senza spese libera soluzione al secondo piano di oltre 100 m² composta da ingresso, cucina abitabile, grande salone, bagno padronale e due camere matrimoniali. Parzialmente Arredato, termoautonomo con Eu.. 400 di spese annue. Serramenti in alluminio doppi vetri, cucina arredata, Ampia cantina al piano interrato. Libero sui tre lati, luminosissimo. Possibilità di visite previo appuntamento telefonico al 335.8396004.

Consulenza ed assistenza tecnico legale sino alla stipula del Rogito Notarile.
Valutazioni GRATUITE SENZA IMPEGNO Servizio FOTOGRAFICO Inserzioni pubblicitarie sui maggiori portali di settore e riviste Associati F.I.M.A.A. Como. Note: Le informazioni presenti nelle schede immobili non costituiscono alcuna forma di contratto, tutte le informazioni contenute negli annunci sono da ritenersi del tutto indicative e non potranno essere utilizzate come parte integrante in un eventuale contratto di vendita o locazione della proprietà e non vincolano in alcun modo la società Gruppo Servizi Immobiliari.

NOTA: Si avvertono i Signori clienti che gli indirizzi inseriti all'interno dell'annuncio sono indicativi e non rispecchiano la realtà. Questa, vuole essere un ausilio nell'indicazione della zona pur rispettando la Privacy dei venditori. Ulteriori chiarimenti possono essere forniti presso la nostra sede o telefonicamente.


TUTTE LE INFO IN AGENZIA! Venite a trovarci in agenzia, il nostro personale esperto e qualificato vi aiuterà a trovare l'immobile giusto per le vostre esigenze. Offriamo anche consulenza finanziaria con mediatori creditizi abilitati, e preventiva verifica catastale e urbanistica con tecnici professionisti

Dettaglio immobile

Contratto Vendita
Rif IMMO-126236421
Prezzo € 115.000
Provincia Como
Comune Cantu'
Indirizzo Via Puecher
Superficie 100 mq
Vani 3
Camere 2
Bagni 1
Classe energetica G (DL 192/2005)
EPI 175.00 kwh/m2 anno
Riscaldamento autonomo
Condizioni abitabile
Anno di costruzione 1957
Arredato si
Ascensore no
Cantina si
Cucina abitabile

Video

Planimetrie

Richiedi maggiori informazioni

Autorizzazione al trattamento dei dati personali+
Dichiaro di aver letto l'informativa sulla privacy ed accetto le condizioni d'utilizzo del servizio.
Riempi il campo con il codice riportato nell'immagine*
Codice Captcha
Chiamaci Contattaci